interior design
Double-Level Villa
📍 Kefalas, Apokoronas — Chania, Crete
Kefalas Double-Level Villa
- 3 Bedrooms
- 3 Bathrooms
- 127 sqm
- From 665.000 €
- Handover: May 2026
Construction Progress
Villa Kefalas A · Next milestone: Roof Completion
80%
About This Villa
Kefalas is a premium, two-story villa development by H2O Living Crete. Designed with a modern aesthetic, the project is a “turnkey” residence featuring high-quality furniture, professional landscaping, and an A+ energy rating
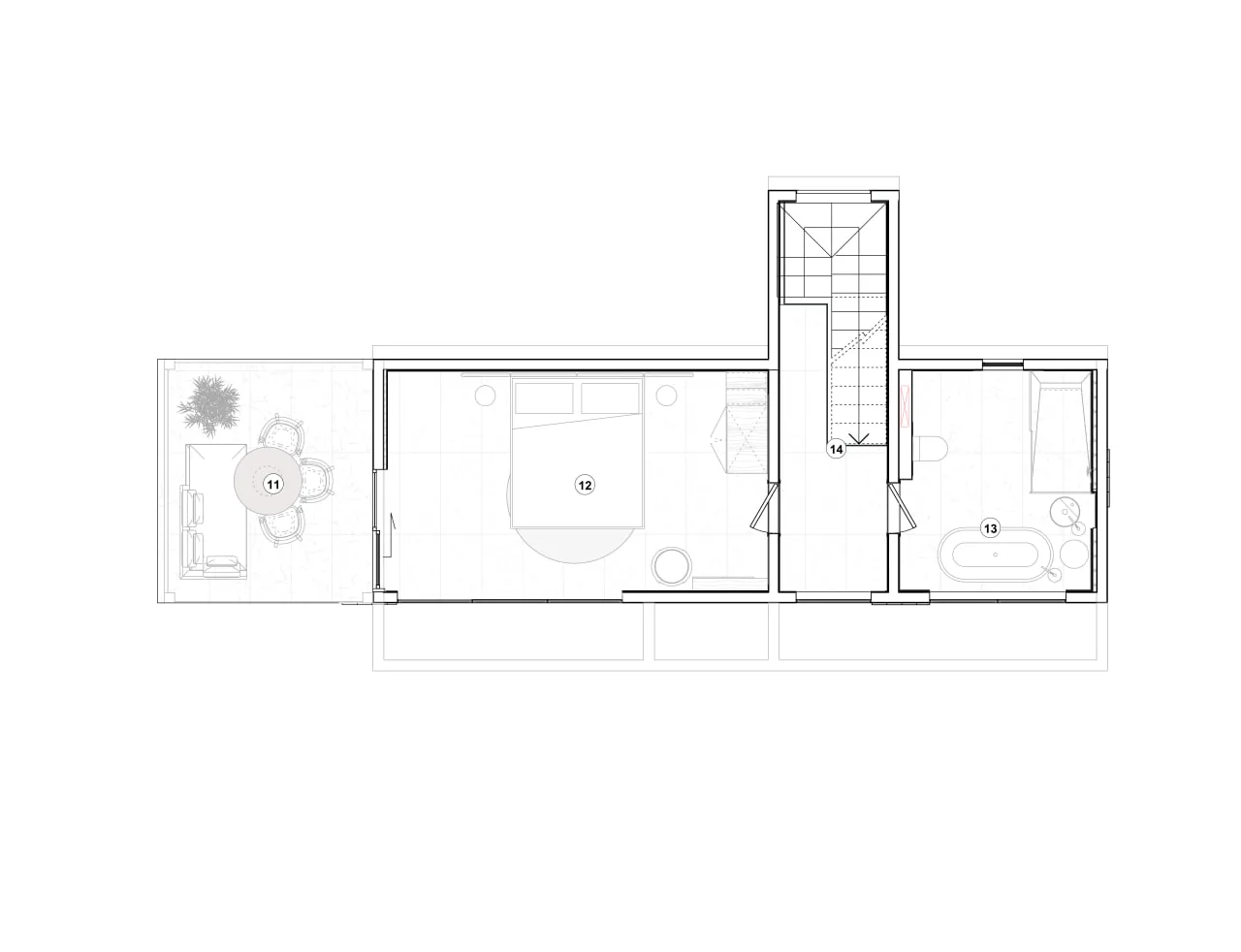
Layout
The interior is meticulously planned, featuring specialized lighting and high-quality finishes:
The Lounge: A grand living space featuring a decorative stone wall, sofas, armchairs, and a full entertainment setup with integrated artwork.
Gourmet Kitchen: Equipped with sintered stone countertops and European Grade EO plywood cabinetry. It includes a modern island and appliances.
Master Suite: A luxurious retreat featuring a king-size bed, and a master bathroom with a concealed waterfall shower set.
Additional Bedrooms: Two additional bedrooms are fully furnished with queen beds, nightstands, and private en-suite bathrooms.
Outdoor Living & Amenities
The exterior is designed for luxury Mediterranean living:
Infinity Pool:
Size: The pool measures 36 sqm
Depth: It has a constant depth of 1.45m.
pool with an anti-slip tile bottom and LED lighting.
Patio & Terraces: Includes a roof terrace and a covered patio area equipped with an outdoor sofa set, three sun loungers, a barbecue area, and an outdoor dining set.
Landscaping: Levelled grounds with a designated parking space for two cars
Technical Specifications & Warranties
Climate Control: Five air-conditioning units are installed throughout the residence.
Water & Power: Independent meters for water and electricity, with hot water supplied via a solar boiler with electric backup.
Peace of Mind: A 24-month warranty covers workmanship and materials for electrical and plumbing systems.
Photo Gallery
Recent Construction Updates
18
Mar 26
Ground work
The timber roof structure for the main building is now fully erected. Tile laying begins next week.
14
Feb
Structural Framing Signed Off
Reinforced concrete frame inspection passed. We are officially ahead of schedule by 12 days.
28
Jan
Foundation Completed
The full foundation and underground drainage system has been completed and backfilled.
Interested in this villa?
- Super Market 5-minute walk
- Coffee 5-minute walk
- Health Center 10 minutes by car
- Airport 50 min by car
- Vamos village 8 min by car
- Post 9 minutes by car
- School 10 minutes by car
- Bank 10 minutes by car
- Famous beaches 10 min by car
- Panoramic view from any villa
Kefalas: A Location Worth Investing In
Even though it feels like a retreat, Kefalas is well connected to everything that matters. Local markets and a bakery are just a five-minute walk away, while essential services such as a hospital, school, bank, and post office are all within a nine-minute drive.
Here, you can live quietly, surrounded by natural beauty and traditional charm, without giving up comfort or convenience. The secluded shores of Ombrosgialos Bay and other hidden beaches are just a short drive away, perfect for those who prefer the road less traveled. And while the world-class restaurants, shops, and cultural life of Chania are always within reach, Kefalas keeps you comfortably distant from the tourist crowds.
It is a place where nature, privacy, and heritage come together to offer something timeless — a lifestyle worth living, and a location worth investing in.

